Lokalita Znojmo
Prodej bytu se 3 jednotkami, 122 m² - Znojmo, Palackého
-
-
Cena 6 990 000 Kč
-
Typ6 a více
-
Velikost 122 m²
Video
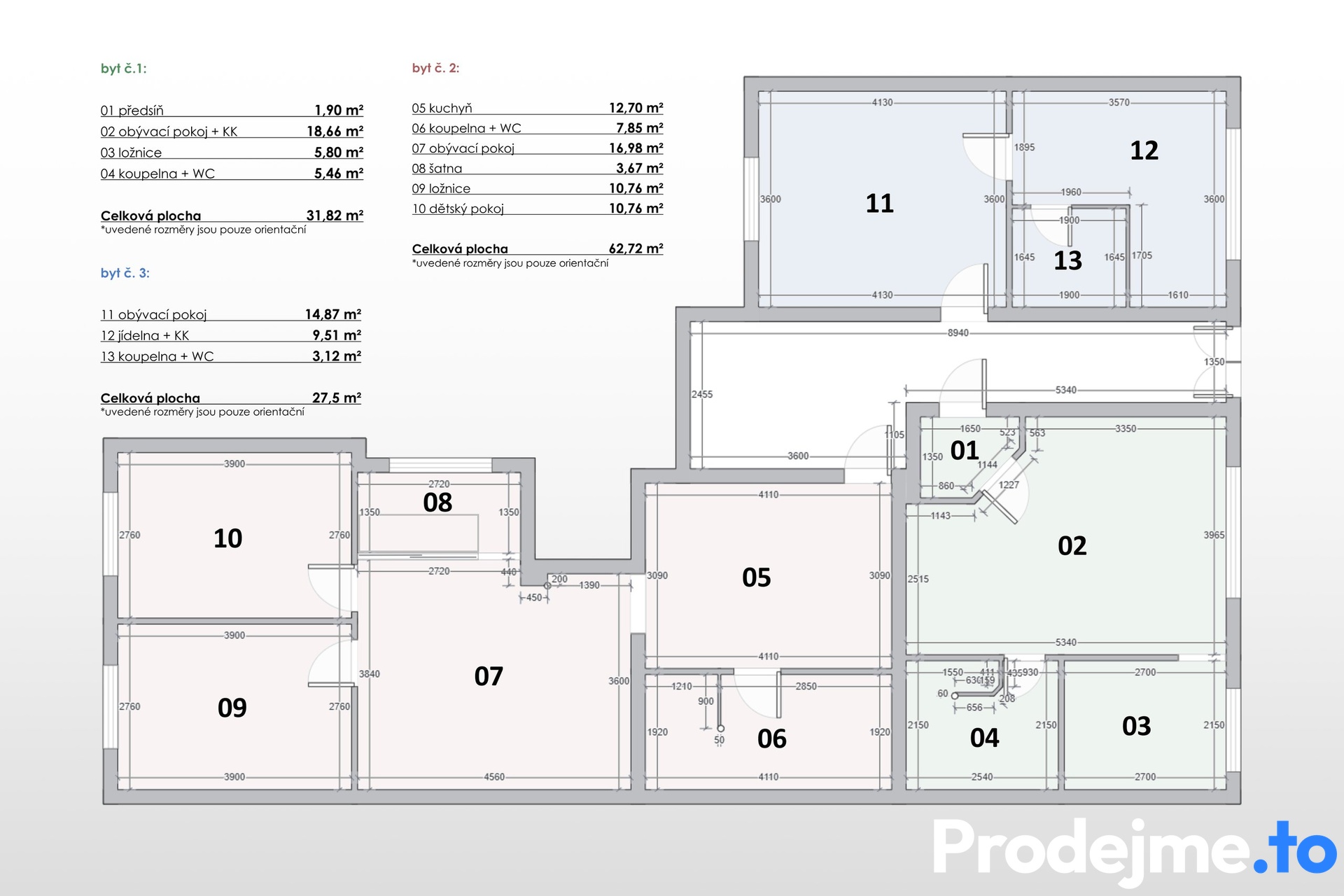
Tři byty v jednom! Nenechte si ujít tuto zajímavou investiční příležitost a poznejte vše co nabízí.
+ 3 bytové jednotky
+ 3+1, 2+kk, 1+kk
+ podružná měřidla pro každou jednotku
+ celková užitná plocha 122 m2
+ pozemek 326 m2
+ udržovaná zahrada ve vnitrobloku
+ plastová okna
+ sklepy a komory
+ 2 jednotky ihned k pronájmu
Bytům patří celé přízemí dvoupodlažního rodinného domu. Všechny jednotky disponují vlastním vstupem a jsou opatřeny podružnými měřidly. Součástí prodeje jsou také podíly na společných částech bytového domu – chodbě, sklepních prostorech, půdních prostorách a komorách.
• jednotka 3+1
Ihned k pronájmu. Poskytuje celkovou plochu 63 m2, která sestává z moderní kuchyně s vybavenou kuchyňskou linkou, velkého obývacího pokoje s vestavěnou skříní, ložnice a dětského pokoje s okny do vnitrobloku, praktické šatny a koupelny s vanou a toaletou včetně místa na pračku.
• jednotka 2+kk
Ihned k pronájmu, ale bytu by prospělo vymalování a drobná renovace podlah. K bydlení nabízí celkovou plochu 32 m2 skládající se z prostorného obývacího pokoje s vybavenou kuchyňskou linkou, útulné ložnice, malé předsíně a koupelny se sprchovým koutem a toaletou.
• jednotka 1+kk
Připravena k celkové rekonstrukci s plochou 28 m2. Jde o původní prostory garáže, kde v rámci výstavby bytové jednotky došlo ke zvýšení podlahy a současně má platné povolení k náhradě garážových vrat za okno. V budoucnu může mít obývací pokoj, jídelnu s kuchyňským koutem a koupelnu s toaletou.
Velkým bonusem je také možnost příjemného posezení na udržované zahradě ve vnitrobloku. Má výměru 81 m2 a je rozdělená na 2 části. Přední se zámkovou dlažbou s venkovním posezením a zadní se záhonky pro pěstování rostlin.
Byty 3+1 a 2+kk mají nové rozvody elektřiny, vody i odpadů. Vytápění je řešeno elektrickými topnými panely a vodu ohřívají elektrické bojlery. Jednotka 1+kk čeká na kompletní rekonstrukci. Dům je připojený na plyn, ale v současné době je využíván pouze pro plynový sporák v bytě 3+1.
Nemovitost leží na ulici Palackého, takže vás bude od centra Znojma dělit jen 1,5 kilometru. Ve vzdálenosti 500 metrů je k dispozici supermarket Kaufland, lékárna a cukrárna. V těsné blízkosti jsou pak k dispozici mateřská i základní škola, zastávky MHD i restaurace.
Zaujala vás tato nemovitost? Rád se s vámi potkám na společné prohlídce. Neváhejte mě kontaktovat ani v případě dodatečných dotazů. S financováním vám pomohou naši specialisté na hypoteční úvěry.


- Voda: Dálkový vodovod
- Topení: Lokální elektrické
- Typ cesty: Asfaltová
- Doprava: MHD
- Elektřina: 230V, 400V
- Druh objektu: Řadový
- Užitná plocha: 122 m²
- Typ budovy: Cihlová
- Lokalita: Znojmo
- Typ nabídky: Prodej
- Lokalita kraj: Jihomoravský kraj
- Lokalita obec: Znojmo
- Stav stavby: Dobrý
- Právní servis: včetně právního servisu
